



















| 物件種別 | 戸建 |
|---|---|
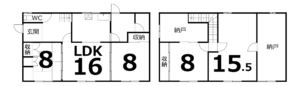
| 間取り | 4LDK |
| 建物面積 | 147.42㎡ / 44.59坪 |
| 土地面積 | 261.81㎡ / 79.20坪 |
| 構造 | 木造 |
| 階層 | 地上2階建 |
| 築年月 | 1990年12月 (築後35年) |
| 現況 | 空室 |
| 駐車場 | 2台 |
| 前面道路 | 西側 公道 / 幅員7.25m |
| 小学校 | 北見市立小泉小学校 |
| 中学校 | 北見市立小泉中学校 |
| 引渡 | 即可能 |
| 土地権利 | 所有権 |
| 地目 | 宅地 |
| 都市計画 | 市街化区域 |
| 用途地域 | 準工業地域 |
| 取引態様 | 一般媒介 |
| 情報更新日 | 2026/04/19 |
| 価格 | 1,049万円 | ||
|---|---|---|---|
| 間取り | 4LDK | 築年月 | 1990年12月 (築後35年) |
| 建物面積 |
147.42㎡
44.59坪
|
土地面積 |
261.81㎡
79.20坪
|
| 交通 | JR石北本線 柏陽駅 | ||
| 所在地 | 北海道北見市柏陽町55-11 | ||











タップで拡大表示します

タップで拡大表示します
| 物件種別 | 戸建 |
|---|---|
| 間取り | 4LDK |
| 建物面積 | 147.42㎡ / 44.59坪 |
| 土地面積 | 261.81㎡ / 79.20坪 |
| 構造 | 木造 |
| 階層 | 地上2階建 |
| 築年月 | 1990年12月 (築後35年) |
| 現況 | 空室 |
| 駐車場 | 2台 |
| 前面道路 | 西側 公道 / 幅員7.25m |
| 小学校 | 北見市立小泉小学校 |
| 中学校 | 北見市立小泉中学校 |
| 引渡 | 即可能 |
| 土地権利 | 所有権 |
| 地目 | 宅地 |
| 都市計画 | 市街化区域 |
| 用途地域 | 準工業地域 |
| 取引態様 | 一般媒介 |
| 情報更新日 | 2026/04/19 |